K2A2 Kaltenbach Architecten
Kristjan + Amelie Kaltenbach Architecten
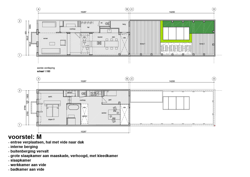
Maaskade
< Hoofdmenu
#1 | #2 | #3 | #4 | #5 | #6 | #7 | #8 | #9
> Download PDF bestand
#4
Werk
> 2008 Villa Alemannenstrasse
> 2008 Bergsingel Annex
> 2008 Hoek van Holland
> 2008 Interieur Maaskade
> 2008 Villa Black Forest
> 2008 Dakopbouw Wilhelmstrasse
> 2009 Eichbergstrasse 10
> 2009 Bauvorhaben Sonne
> 2009 Bergsingel
> 2010 Bernsteinstrasse
> 2011 Breinhuis
> 2012 Rothenbauernhof
> 2012 Gaststätte Sonne
> 2014 Duin Loft
> 2014 Maaskade
> 2014 Jachthaven Naarden
> 2014 Twee Woonhuizen Rotterdam
> 2015 Rodenrijsestraat 63
> 2015 Duin Terraswoningen
©2016 K2A2 Kaltenbach Architecten
Contact
K2A2 Kaltenbach Architecten
Rodenrijsestraat 61A
3037 NC Rotterdam

Kristjan Kaltenbach
mail: kk@k2a2.nl
mobiel: 0634433080

Amelie Kaltenbach
mail: ak@k2a2.nl
mobiel: 0624235410
K2A2 Kaltenbach Architekten
Freiburg
Maaskade